À VENDA
Setor 29 - Vilhena/ROÀ VENDA
Setor 29 - Vilhena/RORef.: 4672 fotos

Mais fotos

Em construção
venda
R$230.000,00Dormitórios
3 DormitóriosGaragens
1 VagaÁrea Construída
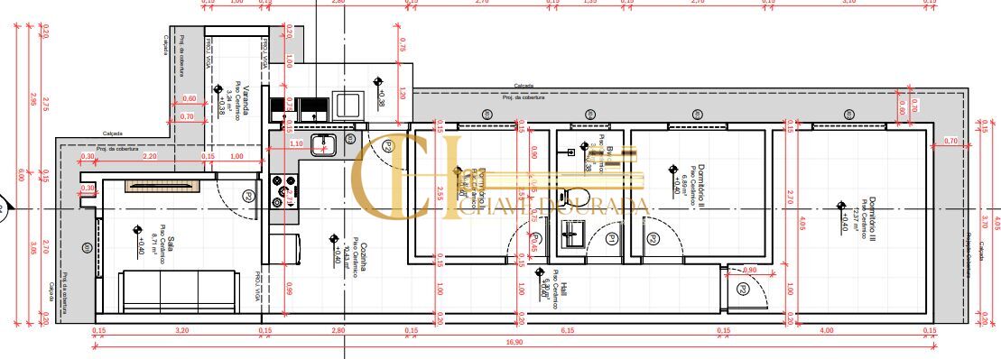
68,78 m²Situação
Em construçãoCômodos
3 Dormitórios1 Banheiro1 Vaga1 Cozinha1 Sala de estar1 Área de serviço
Características do Imóvel
Forro de gessoIluminação em LEDManta térmicaPiso retificado
Proximidades
IgrejaMercadoPadaria
Descrição do imóvel
Casa à venda – Bairro Setor 29
Imóvel bem dividido, com cômodos espaçosos e um terreno amplo, ideal para quem valoriza conforto e espaço.
📐 68 m² de área construída
📏 Terreno 06x 30 m
✨ Composição do imóvel:
✅ 03 quartos
✅ Sala de estar
✅ Cozinha
✅ Banheiro social
💰 Valor: R$ 230.000,00
Excelente oportunidade para quem busca um imóvel funcional, com ótimo aproveitamento de espaço e valor acessível! 🔑📲
As informações estão sujeitas a alterações. Consulte o corretor responsável.
Localização
Setor 29 - Vilhena/ROFicha do imóvel
Minha Casa Minha VidaSim
PerfilResidencial
SituaçãoEm construção
Aceita FinanciamentoSim
Área Construída68,78m²
Terreno Frente6m
Terreno Fundo6m
Terreno Direita30m
Terreno Esquerda30m
Ana Luiza RigoCRECI - 3915
(69) 99988-0050Copiado!
Olá! Estamos disponíveis para te ajudar.
